气动不锈钢固定式球阀
技术参数
产品型号:Q647F
公称通径:DN50-500mm
公称压力:PN1.6-4.0 MPa
适用温度:-29-425℃
阀体材质:WCB、WC6、WC9、LCB、CF8、CF3、CF8M、CF3M
适用介质:水、蒸汽、油品、部分酸、碱
销售热线:
产品详情
产品概述
气动不锈钢固定式球阀可配阀门定位器输入控制信号(4-20mADC或1-5VDC)气源即可控制运转。该气动球阀亦可配行程限位开关、电磁阀、三联件及0.4-0.7MPa气源可实现开关操作,并送出二对无源触点信号指示阀门的开关。广泛应用于造纸、石化、化工、冶金、电力、环保、石油、轻工等工业部门的自动化控制系统中。
结构特点
1、流体阻力小、球阀是所有阀类中流体阻力小的一种,即使是缩径球阀,其流体阻力也相当小。
2、止推轴承减小阀杆磨擦力矩,可使阀杆长期操作平稳灵活。
3、阀座密封性能好,采用聚四氟乙烯等弹性材料制成的密封圈,结构易于密封,而且球阀的阀封能力随着介质压力的增高而增大。
4、阀杆密封可靠,由于阀杆只作彷转动运而不做升降运动,阀杆的填料密封不易破坏,且密封能力随着介质的压力增高而增大。
5、由于聚四氟乙烯等材料具有良好的自润滑性,与球体的磨擦损失小,故球阀的使用寿命长。
6、下装式阀杆和阀杆头部凸阶防止阀杆喷出,如火灾造成阀杆密封破坏,凸阶与阀体间还可形成金属接触,确保阀杆密封。
7、防静电功能:在球体、阀杆、阀体之间设置弹簧,能将开关过程产生的静电导出。
主要零件材质
| 序号 | 零件名称 | 材质 | ||
| C | D | R | ||
| 1 | 左右阀体 | A216-WCB | A351-CF8 | A351-CF8M |
| 2 | 螺柱 | A193-B7 | A276304 | A276316 |
| 3 | 螺母 | A1942H | A276304 | A276316 |
| 4 | 弹簧 |
YB/T5104 60Si2M0 |
YBD(T)11 1Cr18Ni9 |
YBD(T)11 0Cr18Ni12Mo2 |
| 5 | 阀座 | A182-A105 | A276304 | A276316 |
| 6 | 密封圈 | PTFE | PTFE | PTFE |
| 7 | O形圈 | 橡胶 | 橡胶 | 橡胶 |
| 8 | 垫片 | PTFE | PTFE | PTFE |
| 9 | 法兰 | A216-WCB | A351-CF8 | A351-CF8M |
| 10 | 垫片 | PTFE | PTFE | PTFE |
| 11 | 下阀杆 | A276-410 | A276304 | A276-316 |
| 12 | 衬套 | PTFE | PTFE | PTFE |
| 13 | 球体 | A182-F304 | A182-F304 | A182-F316 |
| 14 | 键 | A1SIC1045 | A276304 | A276-316 |
| 15 | 阀杆 | A276410 | A276304 | A276316 |
| 16 | 衬套 | PTFE | PTFE | PTFE |
| 17 | 填料 | PTFE | PTFE | PTFE |
| 18 | 填料压盖 | A216-WCB | A276304 | A276316 |
| 19 | 连接套 | A182-A105 | A276-304 | A276304 |
| 20 | 支架 | A216-WCB | A276304 | A276304 |
| 21 | 阀体 | A216-WCB | A351-CF8 | A351-CF8 |
| 22 | 气动执行器 | - | - | - |
执行标准
| 设计依据 | API、ANS1标准 | JIS标准 | |
| 设计标准 | API6D、ANSIB16.34 | JISB2071 | |
| 结构长度 | 法兰连接 | AP16D、ANS1B1610 | JISB2002 |
| 连接法兰尺寸 | ANS1B16.5 | JISB2212、B2213、B2214 | |
| 试验和检验 | AP16D、AP1598 | J1SB2003 | |

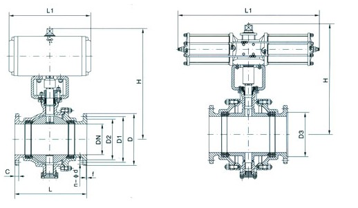
主要连接尺寸
|
公称通径 DN(mm) |
尺 寸(mm) | 执 行 器 型 号 | |||||||||||
| 1.6MPa | 2.5MPa | 4.0MPa | |||||||||||
| L | D | D1 | z-φd | L | D | D1 | z-φd | L | D | D1 | z-φd | ||
| 50 | 203 | 160 | 125 | 4-18 | 216 | 160 | 125 | 4-18 | 216 | 160 | 125 | 4-18 |
可选配DA/SR、QGSY、 SY-CH、GTD/GTE AW/AWS、SY-YD、 系列执行器 (以上选配仅供参考具体 选区用根据实际要求) |
| 65 | 222 | 180 | 146 | 4-18 | 241 | 180 | 145 | 8-18 | 241 | 180 | 145 | 8-18 | |
| 80 | 241 | 195 | 160 | 8-18 | 283 | 195 | 160 | 8-18 | 283 | 195 | 160 | 8-18 | |
| 100 | 305 | 215 | 180 | 8-18 | 305 | 230 | 190 | 8-23 | 305 | 230 | 190 | 8-23 | |
| 125 | 356 | 245 | 210 | 8-18 | 381 | 270 | 220 | 8-25 | 381 | 270 | 220 | 8-25 | |
| 150 | 394 | 280 | 240 | 8-23 | 403 | 300 | 250 | 8-25 | 403 | 300 | 250 | 8-25 | |
| 200 | 457 | 335 | 295 | 12-23 | 502 | 360 | 310 | 12-25 | 502 | 375 | 320 | 12-30 | |
| 250 | 533 | 405 | 355 | 12-25 | 586 | 425 | 370 | 12-30 |
|
|
|
|
|
| 300 | 610 | 460 | 410 | 12-25 | 648 | 485 | 430 | 16-30 |
|
|
|
|
|
| 350 | 686 | 520 | 470 | 16-25 | 762 | 550 | 490 | 16-34 |
|
|
|
|
|
| 400 | 762 | 580 | 525 | 16-30 | 838 | 610 | 550 | 16-34 |
|
|
|
|
|
| 450 | 864 | 640 | 585 | 20-30 | 914 | 660 | 600 | 20-34 |
|
|
|
|
|
| 500 | 914 | 705 | 650 | 20-34 | 991 | 730 | 660 | 20-41 |
|
|
|
|
|

查看手机网站