筒形全焊接固定球阀
技术参数
产品型号:Q367F
公称通径:DN50~1200mm、NPS2"~48"
公称压力:PN1.6~4.2Mpa、Class150~2500LB
适用温度:-29℃~150℃
驱动方式:电动、手动、蜗轮驱动、齿轮驱动等
设计制造标准:GB/T 12237-2007
结构长度标准:GB/T 12221-2005
承插焊标准:GB12224、ANSIB16.25
压力温度等级:GB/T 12224-2005
试验检验标准:GB/T 13927-2008
销售热线:
产品详情
产品结构特征
整体焊接组合,不会有外部泄漏等现象,特别适合长输管线埋地工况和对外漏要求苛刻工况。广泛应用于城市燃气、城市供 热、石油化工、造船、钢铁、调压站、发电厂等各类管道设备上。
其主要结构特点有:
1、流阻小;
2、活塞座,防火安全,防静电设计;
3、对流向没有限制;
4、当阀门处于全开位置时,阀座表面是外部水流,始终与闸板完全接触,可以保护阀座 表面,适用于清管;
5、弹簧式盘根可选;
6、低排放填料可根据ISO 15848要求选择;
7、扩展设计可以选择;
8、金属对金属座椅设计可选
9、DBB,DIB-1,DIB-2结构可选;
10、球固定有支撑板和固定轴;
11、可以选择单焊或双焊设计。
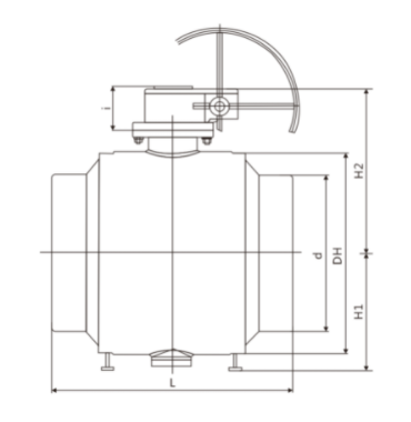
主要外形连接尺寸
| DN(mm) | 公称直径 | DH | d | t | L | H1 | H2 | 重量(Kg) |
| 600 | 600 | 1016 | 630 | 10 | 1143 | 650 | 860 | 2000 |
| 700 | 700 | 1130 | 720 | 10 | 1346 | 705 | 915 | 3100 |
| 800 | 800 | 1245 | 820 | 10 | 1524 | 770 | 1000 | 4700 |
| 900 | 900 | 1415 | 920 | 12 | 1727 | 855 | 1110 | 5700 |
| 1000 | 980 | 1555 | 1020 | 14 | 1840 | 925 | 1180 | 6600 |
| 1200 | 1166 | 1860 | 1220 | 16 | 2100 | 1075 | 1430 | 11000 |

查看手机网站