Self-operated differential (micro) pressure control valve
Technical Specifications
Product model: ZZVP, ZZCP
Nominal diameter: DN20~100mm
Pressure range: PN0.1~1.0MPa
Operating temperature: ≤ 80℃
Manufacturing standard: GB/T4213-1992
Flange standard: GB/T9113-2000
Valve material: WCB, CF8
Sealing packing: V-type PTFE (F4), flexible graphite
Control accuracy: ±10 (%)
Leakage level: ANSI B16.104-1976 (level IV)
Sales Hotline:
Product Details
Product overview
Self-operated differential (micro) pressure regulating valve is an energy-saving product that does not require external energy. It uses the pressure change of the medium in the process pipeline to compare with the signal to balance the force of the regulated medium and the output force of the actuator to achieve stability. pressure and differential pressure. ZZCP-1 differential pressure valve adopts balanced single-seat valve, with stable pressure, high precision and good sealing performance, and is used to control small differential pressure. ZZCN-10 type differential pressure valve adopts double seat valve with large flow coefficient. The valve core is installed upside down and upside down to form two different types of products. This product is suitable for various industrial furnace combustion systems to control the mixing ratio and flow of two fuel gases or in the sealing oil system of hydrogen-cooled generator sets. control.
ZZVP type micro-pressure valve adopts balanced single-seat valve, and the set value can be adjusted arbitrarily during operation. Therefore, it is suitable for micro-pressure automatic adjustment of various industrial furnace combustion system fuel gas, petroleum products in process or oil depot storage tank protective gas and heat treatment protective gas.
Features
1. The micro-pressure regulating valve does not require additional energy, and uses the pressure of the medium in the process pipeline to adjust itself, which is convenient and saves energy;
2. The pressure segment range is fine and intersecting with each other, the adjustment accuracy is high, and the pressure setting value can be continuously set during operation;
3. To adjust the pressure behind the valve, the ratio between the pressure before the valve and the pressure after the valve is 10:1~10:8;
4. Rubber diaphragm type detection, high detection accuracy and sensitive action of the actuator;
5. The pressure balance mechanism is adopted to make the control valve respond sensitively and control accurately.
Main technical parameters and performance
| Nominal diameter DN(mm) | 20 | 25 | 32 | 40 | 50 | 65 | 80 | 100 | |
| Limited Data(KV) | Single seat(P) | 8 | 11 | 20 | 32 | 50 | 80 | 100 | 160 |
| Two-seater(N) | ─ | ─ | ─ | ─ | 50 | 83 | ─ | ─ | |
| Rated stroke(mm) | 6 | 8 | 10 | 15 | 20 | ||||
| Adjustment accuracy(%) | ±10 | ||||||||
| Nominal pressure PN(MPa) | ZZC | 0.10、1.0 | |||||||
| ZZV | 0.10 | ||||||||
| Medium temperature (℃) | ≤80 | ||||||||
| Allowable leakage(L/h) | Single seat(P) | 10-4×valve rated capacity | |||||||
| Two-seater(N) | 10-3×valve rated capacity | ||||||||
| Pressure adjustment range (Kpa) | 0.5~5.5、5~10、9~14、13~19、18~24、22~28、26~33、31~38、36~44、41~51、49~58、56~66、64~78、76~90、76~90 | ||||||||
Material of main parts
| Material code | C(WCB) | P(304) | R(316) | |
| Main part | Body, valve cover | WCB(ZG230-450) | ZG1Cr18Ni9Ti(304) | ZG1Cr18Ni12Mo2Ti(316) |
| Valve core, valve seat | 1Cr18Ni9Ti(304) | 1Cr18Ni9Ti(304) | 1Cr18Ni12Mo2Ti(316) | |
| Stem | 2Cr13 | 1Cr18Ni9Ti | 1Cr18Ni12Mo2Ti | |
| Packing | V-type PTFE (F4), flexible graphite | |||
| Gasket | Reinforced polytetrafluoroethylene (F4), stainless steel gasket, metal graphite spiral wound gasket | |||
| Upper and lower membrane cover | A3 steel sheet stamping | |||
| Corrugated Diaphragm | Nitrile rubber, oil resistant rubber, fluorine rubber | |||
| Spring | 60Si2Mn | |||
| Bellows | 1Cr18Ni9Ti | |||
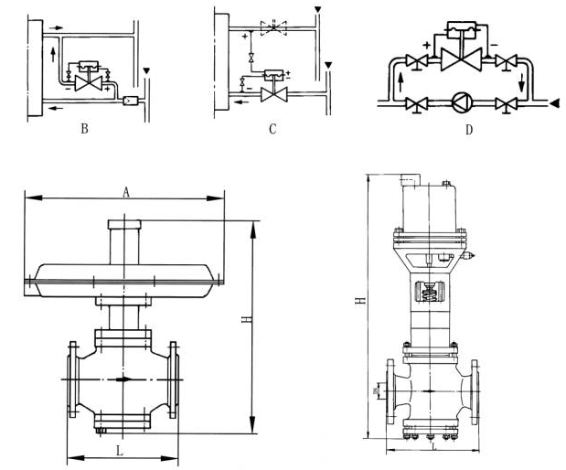
Main dimensions and weight
|
DN |
20 |
25 |
32 |
40 |
50 |
65 |
80 |
100 |
|
|
A |
308 |
394 |
308 |
394 |
308 |
394 |
394 |
394 |
|
|
H |
ZZCP/ZZVP |
376 |
465 |
365 |
445 |
445 |
490 |
490 |
510 |
|
ZZCN |
536 |
536 |
|
|
|
|
|
|
|
|
L |
ZZCP/ZZVP |
150 |
160 |
180 |
200 |
230 |
290 |
310 |
350 |
|
ZZCN |
222 |
222 |
|
|
|
|
|
|
|
|
WT(Kg) |
12 |
13 |
15 |
17 |
20 |
28 |
38 |
43 |
|
|
Pressure pipe threaded joint |
M16X1.5 |
||||||||

Check the mobile website